Lāčplēša iela 20A, Rīga
| ID: |
259 |
| Area: |
340 m2 |
| Floor: |
5 |
| Price: |
3 570 EUR / month |
Office Space for Lease in Tērbatas Business Centre – in the Heart of Riga’s Historical Centre!
We offer modern office premises in one of the most unique and architecturally remarkable buildings in Riga’s city centre – the Tērbatas Business Centre. The building combines historical charm with contemporary functionality, creating an inspiring environment for work and collaboration.
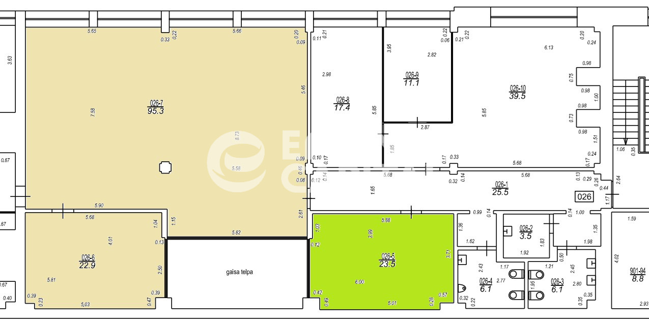
- Office is located on the 5th floor;
- Open-plan layout for up to 13 workstations;
- 1 - 2 meeting room;
- WC;
- Kitchen and lounge area
Brand-New Office Fit-Out.
The premises are being completely newly built and fitted out, ensuring high quality and the possibility to customize the layout according to your company’s needs.
Estimated availability – approximately 3 months after signing the lease agreement.
Flexible Layout Options
The office layout can be fully adapted to individual requirements, providing an efficient and comfortable workspace for teams of various sizes.
Abundant Natural Light.
The premises feature large floor-to-ceiling windows, offering plenty of natural daylight and creating a bright, modern, and motivating work atmosphere with views of Riga’s historic cityscape.
Modern Building Systems.
The offices are equipped with centralized ventilation and air conditioning, ensuring a comfortable indoor climate throughout the year.
Security and Accessibility.
The building provides 24/7 access, video surveillance, and alarm systems to ensure safety and convenience for tenants.
Underground Parking.
Tenants have access to a convenient underground parking facility, providing comfortable access to the building in all weather conditions.
Additional Payments:
• Building management fee – €1/m² + VAT
• Real estate tax
• Utilities – according to actual consumption
*The visualizations included in the listing are for illustrative purposes only.
Normunds Muskats
Mobile: +371 20266622
E-mail:
normunds.muskats@eften.lv