EfTEN Capital EfTEN Capital

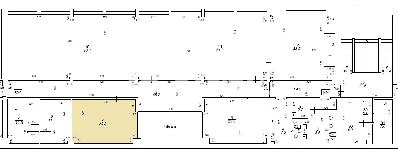
Premises